PROJEKT
Zkusíme popsat základní informace o našem projektu a jak jsme tento projekt tvořili.
1. Postup
Prvním a možná tím nejdůležitějším krokem pro nás bylo dobře si rozmyslet, co a jak budeme chtít na pozemku dělat, realizovat, co všechno se na něm bude odehrávat apod. To jsme samozřejmě rozmýšleli i dlouho před tím, než jsme pozemek zakoupili.
S naší vizí jsme pak zašli za architektkou Helenou Chvílovou, která na základě diskusí s námi pro nás přichystala architektonickou studii. Tedy studii zachycující velikost, umístění a vzhled jednotlivých objektů, o kterých jsme věděli, že bychom je na pozemku rádi měli. Studie rovněž zahrnovala dispozici v rodinném domě.
Výkres paní Chvílové pak převzal projektant Daniel Grmela, který zaštítil technickou stránku projektu a přípravu dokumentace pro stavební povolení, resp. ohlášení.
2. Naše představy
Naše představy bychom shrnuli asi takto:
-
domek:
- dřevostavba s izolací ze slaměných balíků a hliněno-vápenými omítkami
- malý rozměr, jednoduchá sedlová střecha, malé náklady na stavbu
- maximalizovat využití prvků tradiční lidové architektury spolu s respektováním našich specifických požadavků vyplývajících z našeho životního stylu
- minimalizace složitých technologických řešení
-
ostatní stavby:
- garážo/stodola
- hospodářská budova pro drobné zvířectvo
-
ostatní objekty:
- kořenová čistírna odpadních vod
- studna
- brána do dvora
- zápraží s terasou přiléhající domu
-
celková situace:
- respektovat genius loci v okolí lip a božích muk nacházejících se na kraji pozemku
- třemi stavbami vytvořit dvorek, kde se bude odehrávat řada aktivit vně domu
- situovat dům s ohledem na energie - zejména oslunění
- situovat garážo/stodolu s ohledem na příjezdovou cestu
3. Detailní informace o projektu:
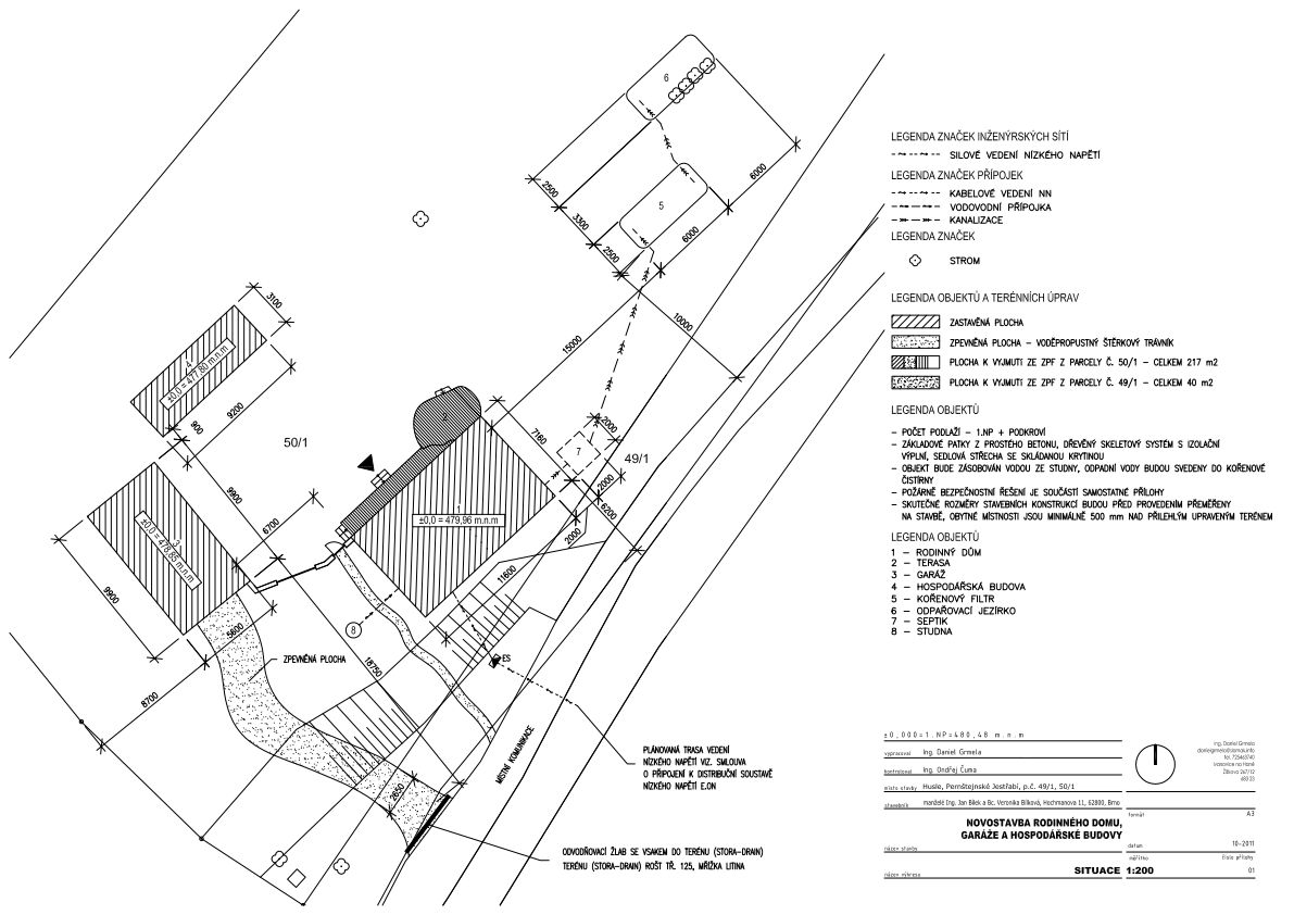
Obrázek na pravé straně ukazuje celkovou situaci stavby. Dům, garážo/stodola a hospodářská budova jsou orientovány tak, aby dvůr vzniklý mezi nimi zajišťoval dostatek soukromí a zároveň aby byla garážo/stodola snadno přístupná z obecní cesty a dům byl alespoň trochu orientován tak, aby umožnil snadnou instalaci kolektorů pro ohřev teplé vody. Zápraží orieontované na SZ zároveň poskytuje hezký výhled do údolí a na celý pozemek. Kořenová čistírna je orientovaná směrem SV k lesu. Zděná brána situovaná mezi domem a garážo/stodolou dodržuje principy lidové architektury a přispívá tak k tomu, aby stavba zapadla do architektonického rázu celé vesnice. Prostor příjezdové cesty ke garážo/stodole nebude oplocen, lípy a boží muka tak budou přístupná veřejnosti.
Obrázek v levo ukazuje venkovní vzhled rodinného domu. Střecha sedlová s červenou keramickou krytinou. Námětek střechy vytváří na SZ straně domu zápraží. Finální omítka bude bílá vápenná. Okna dřevěná kastlová, vnější křídla budou lícovat Štíty budou prkenné.
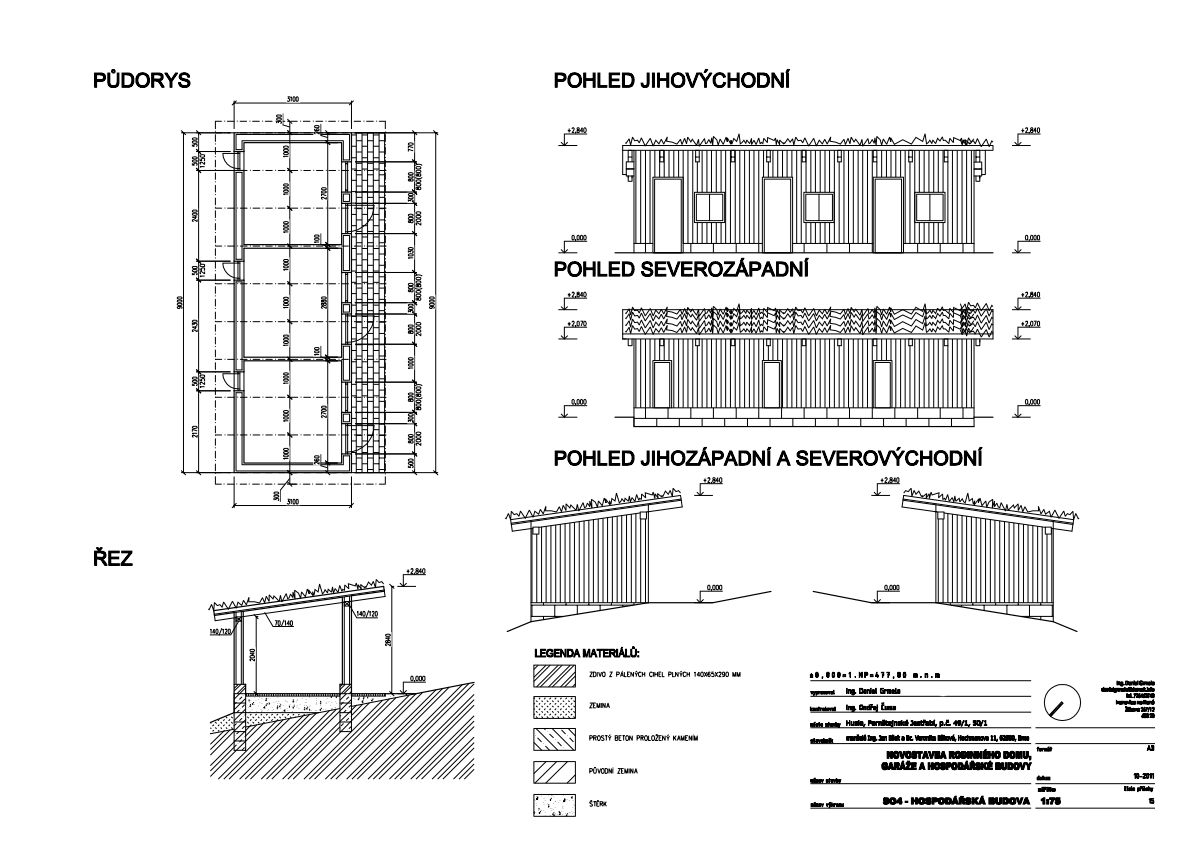
Následující dva obrázky pak ukazují vnější vzhled garážo/stodoly a hospodářské budovy. Garážo/stodola bude vypadat jako běžné stodoly - tedy zděné sloupy s dřevěnou výplní. Sedlová střecha s keramickou krytinou. Hospodářská budova bude mít pultovou zelenou střechu.

